关于晶源光学(河源)有限公司厂区规划设计调整方案的批前公示
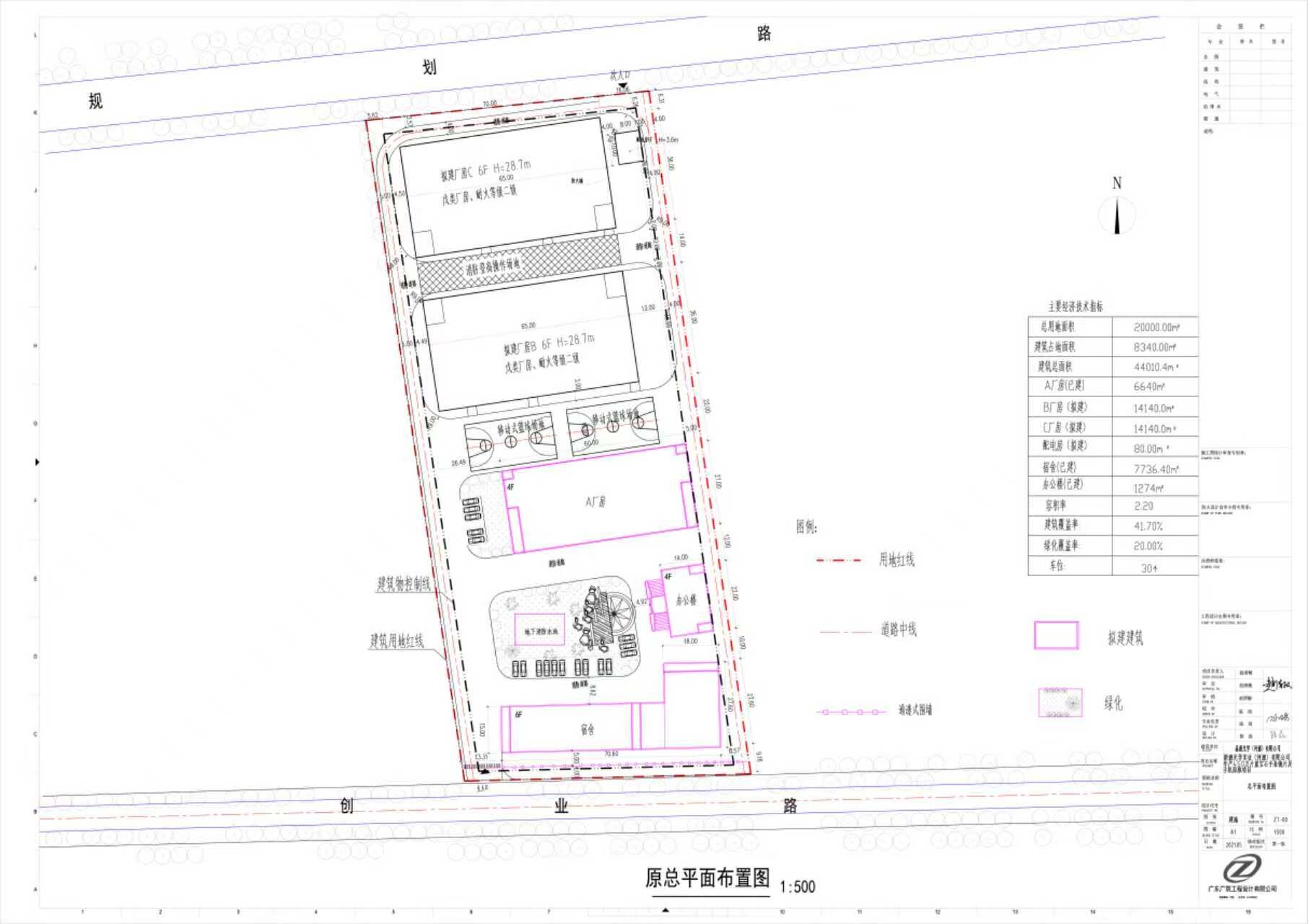
项目位于蝴蝶岭工业园,用地面积20000平方米,用地性质工业用地,原方案经2021年第18次局技术联审小组审议通过。项目已基本建成,建设单位根据电力需求,调整配电房的规模及轮廓,由原规划的80平方米调整为172.18平方米,并优化调整厂区内消防路线。根据相关规定,我局将对该设计方案(具体方案详见附图)进行批前公示。
公示时间:2026年1月26日至2026年2月4日
意见有效反馈期:公示期间(通过信函方式反馈意见的邮戳日期应在意见有效反馈期内,逾期视为放弃权利的无效意见,不予采纳)。
联系电话:0762-8833630
电子邮箱:dyxgtkjgh@163.com
地 址:东源县自然资源局国土空间规划股
附图:
东源县自然资源局
2026年1月26日
分享到:


粤公网安备